Description Appartement à Estepona
ESTEPONA : Appartement Élégant de 2 Chambres au Coeur d'Estepona - Entièrement Meublé et Prêt à Emménager
Ce superbe appartement de 2 chambres allie à la perfection design contemporain, confort et emplacement privilégié, en plein centre d'Estepona. Proposé entièrement meublé avec un pack mobilier haut de gamme d'une valeur de 15 000 E, il est prêt à vous accueillir pour profiter immédiatement de l'art de vivre méditerranéen.
Situé dans une résidence moderne de seulement 23 logements - avec livraison imminente - cette propriété représente une opportunité rare d'acquérir un bien neuf dans l'une des zones les plus prisées de la Costa del Sol. Le bâtiment séduit par son architecture élégante, parfaitement intégrée au cadre andalou typique, ainsi que par la qualité de ses finitions.
Que ce soit comme résidence principale ou comme pied-à-terre pour les vacances, cet appartement bénéficie d'un emplacement idéal à seulement une minute à pied de la plage et de la célèbre promenade maritime d'Estepona. Restaurants, commerces, services et loisirs se trouvent à proximité immédiate.
Living Estepona se situe à quelques pas de la plage de La Rada, une étendue de sable doré de 2,4 km arborant le Pavillon Bleu, appréciée pour son ambiance dynamique, ses nombreux équipements et son emplacement exceptionnel au coeur de la Méditerranée.
Une occasion unique pour celles et ceux qui recherchent qualité de vie, confort et localisation premium au centre d'Estepona.
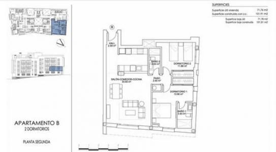
- Chambres2
- Sbds2
- Surface93 m2








Vente Malaga
Vente Ojen